Revolution Homes LLC

Columbia Modera

406 Columbia Drive, Raleigh, NC

$1,399,900

Map 117

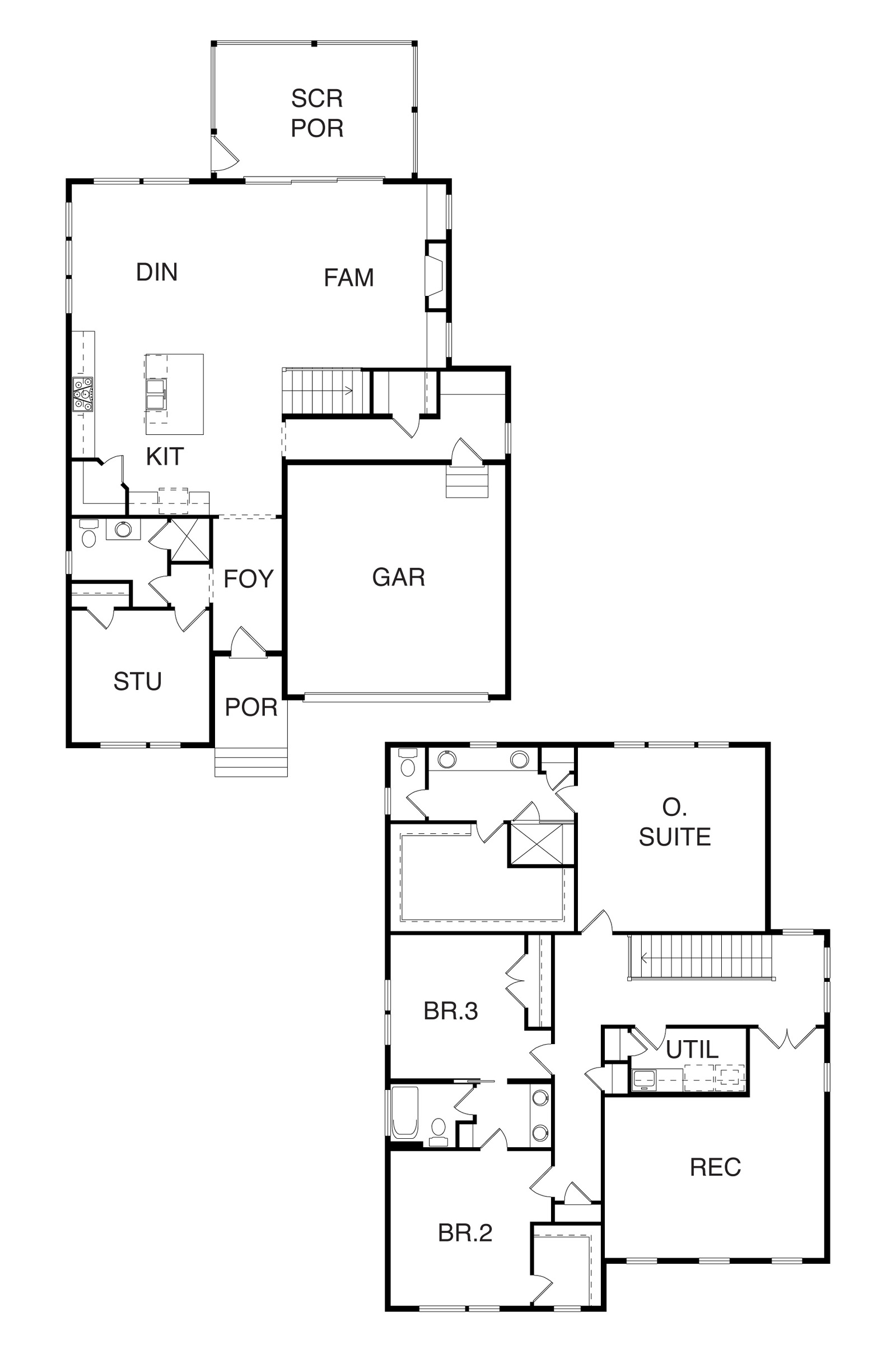
Bedrooms

4

Bathrooms

3

Square Feet

3040

Subdivision Belvidere Park
Decorated Yes
Is this home green certified? Yes
For more info contact Revolution Realty LLC
Phone 9192956215
Email ashley@revolution.homes
Building Company Name Revolution Homes LLC
Building Company Website www.revolutionhomesraleigh.com
Builder Email build@revolution.homes
Builder Phone 919-295-6215
House Plan Designer Creative Residential Designs LLC
Builder Profile ->

• Fresh, modern design with clean lines & bright open spaces.
• Chic kitchen has full-overlay cabinets to ceiling, bold custom hood, quartz waterfall island, & black stainless appliances.
• Porcelain-wrapped fireplace accented with warm custom oak details.
• Primary suite with ceiling accent, oversized double vanity & thoughtfully designed walk-in closet.
• Highly requested main-floor bedroom/office with light-filled window.
• Custom drop zone with bench and shelving off 2-car garage for effortless organization.
• Wide multi-slider door to low-maintenance screened porch. 
• Expansive, private fenced backyard for playspace, gardening & more!
• Embrace a lifestyle of comfort, excellence and energy-efficient living!

powered by Project Presenter