3601 Alamance, Raleigh, NC
$5,000,000
Map 130
5
8
6451
| Subdivision | Country Club Hills |
| Decorated | Yes |
| Is this home green certified? | No |
| For more info contact | Jeremy Gage |
| Phone | 9195929738 |
| Jgage@exeterbuilding.com | |
| Building Company Name | Exeter Building Company |
| Building Company Website | www.ExeterBuilding.com |
| Builder Email | Jgage@exeterbuilding.com |
| Builder Phone | 9193580873 |
| House Plan Designer | Dynamic Design Group |
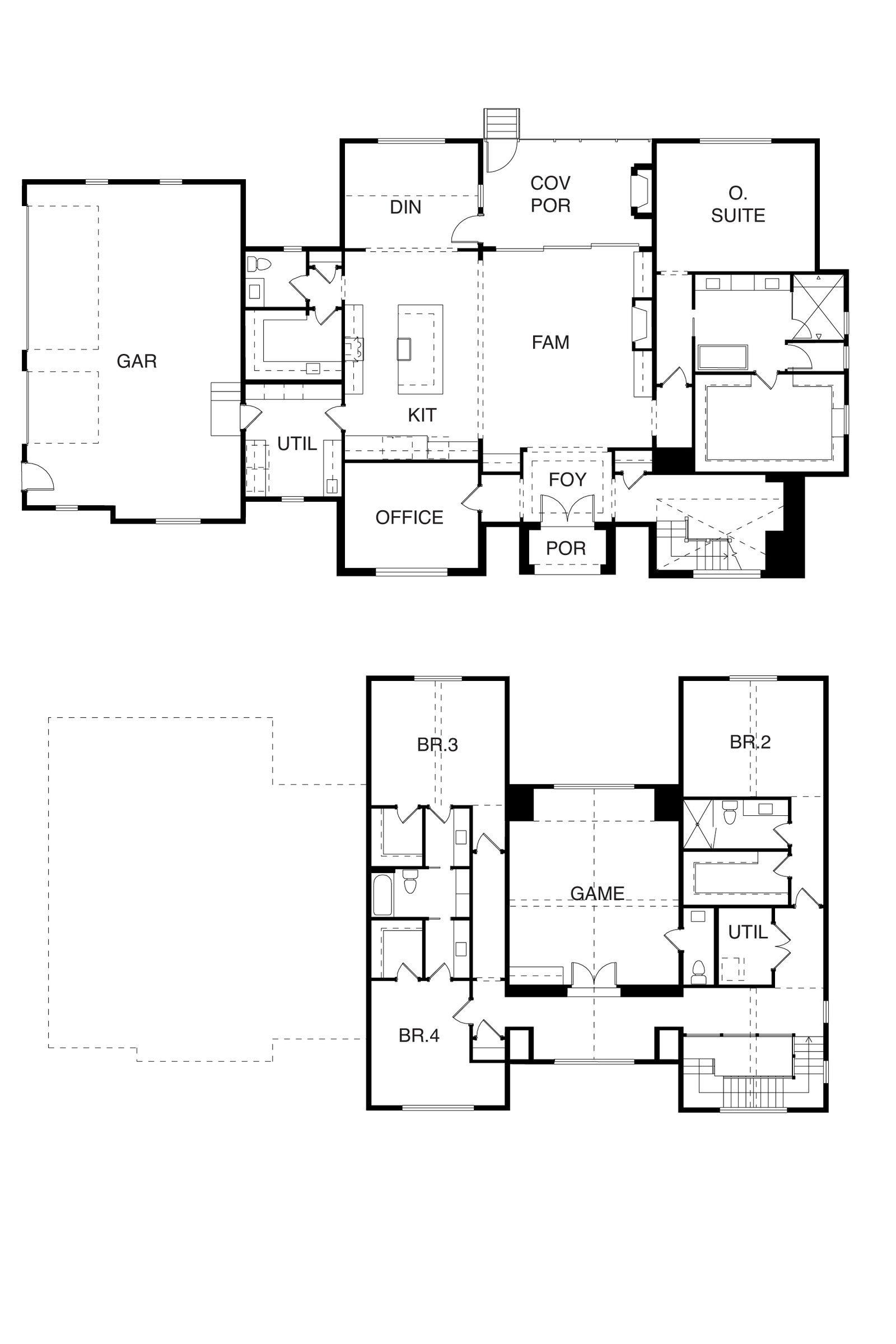
Located in the coveted Country Club Hills community, Inside the Beltline, this brick and stone estate sits proudly on 1.55 wooded acres. Gas lanterns, copper accents, landscape lighting, and mature hardwoods create a striking presence from the street. Inside, an elevator provides access to all levels, including a private in-law suite. Soaring 11’ ceilings and a chef’s kitchen with scullery set the stage for seamless indoor–outdoor living, where three sets of French doors open from the family room to a covered porch with fireplaces and a full outdoor kitchen overlooking the heated saltwater pool and 360° overflow spa. A conditioned wine cellar enhances the home’s entertaining appeal, while a yoga studio with sauna, an oversized recreation room with wet bar, and a luxurious first-floor primary suite with oversized windows complete this resort-style retreat.
Exeter Building Company was founded by three longtime friends who love Raleigh, enjoy home building and wanted to create homes where people could build memories. Our team brings together a combination of home building expertise, design skill and business management to deliver wonderful, quality homes on time and on budget.
$1.5 - $6M+