3301 Dell Drive, Raleigh , NC
$2,250,003
Map 133
5
4
3829
| Subdivision | Bellevue Terrace |
| Decorated | Yes |
| Is this home green certified? | No |
| For more info contact | The Jim Allen Group |
| Phone | 919-845-9909 |
| info@jimallen.com | |
| Building Company Name | Homestead Building Company |
| Building Company Website | https://homesteadbuilt.com/ |
| Builder Email | ryan@homesteadbuilt.com |
| Builder Phone | 919-556-8472 |
| House Plan Designer | McMillan Design |
Prime ITB location.
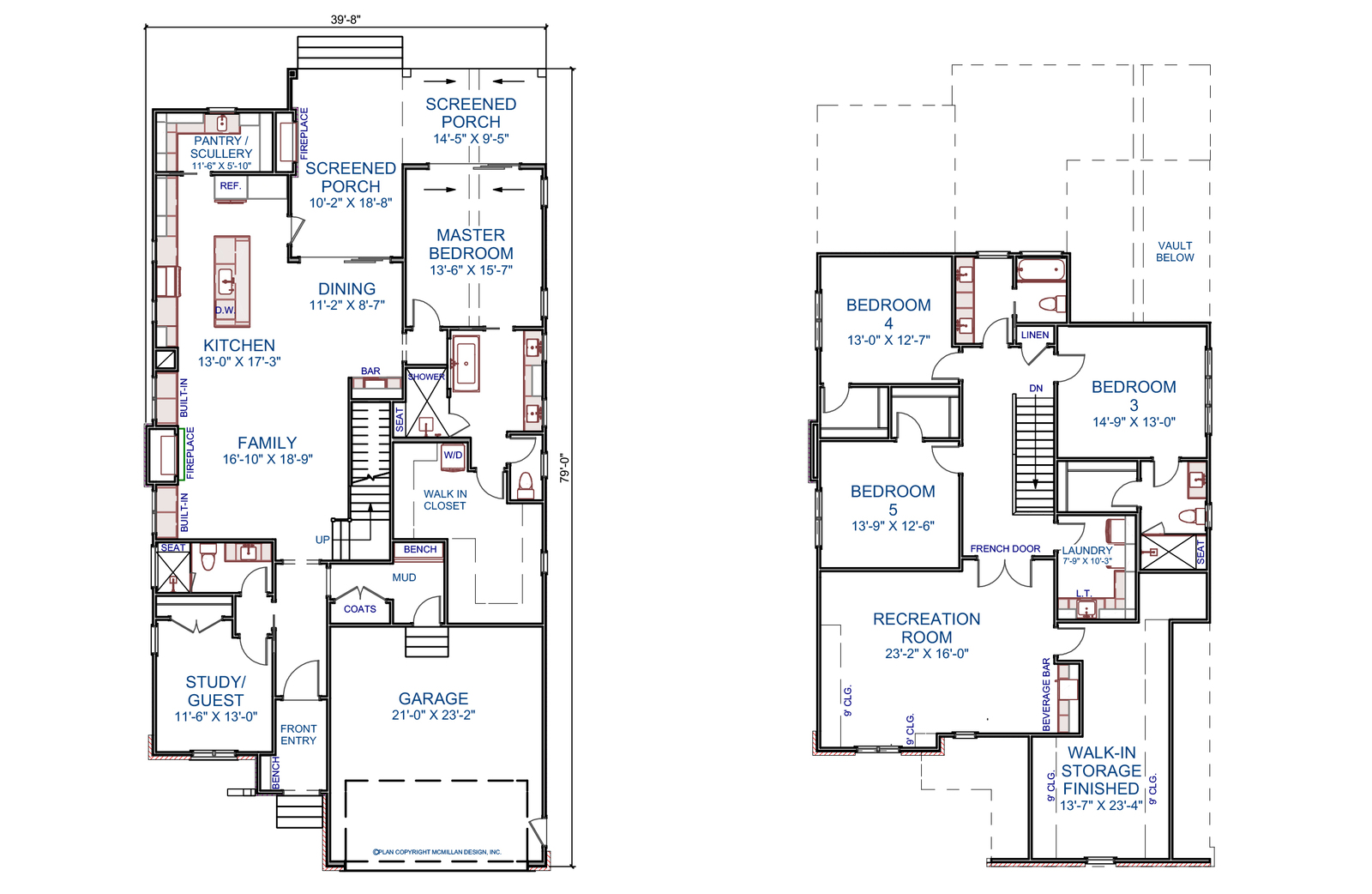
First-floor primary suite with vaulted ceiling, private screened porch & walk-in closet with washer & dryer hookups.
Primary bath with freestanding tub, walk-in shower with bench, and dual vanity with transoms above.
First-floor guest suite or study.
Kitchen with custom cabinets, quartz countertops, large island, Monogram appliances, windows flanking the gas range & scullery.
Informal dining with dry bar perfect for entertaining.
Vaulted screened porch features fireplace and phantom screens.
Second-floor rec room with built-in beverage bar.
Additional second-floor spaces include ensuite bedrooms, laundry room and walk-in storage.
Homestead is a luxury custom home builder in Raleigh, NC. We have been building dreams for 20+ years in the heart of the Triangle. From design and selections through the one-year post-handover warranty, we are committed to an unwavering focus on clear, timely communication that enables improved decision-making and much less friction for the customer. Our proactive support ensures any concerns are addressed promptly, giving clients piece of mind every step of the way.
$2,000,000 - $5,000,000