10008 Regal Dr, Angier, NC
$387,435
Map 2
3
2.5
1924
| Subdivision | Sherri Downs |
| Decorated | Yes |
| Is this home green certified? | No |
| For more info contact | Lennar |
| Phone | 9193379420 |
| LennarRaleigh@lennar.com | |
| Building Company Name | Lennar |
| Building Company Website | https://www.lennarraleigh.com |
| Builder Email | LennarRaleigh@lennar.com |
| Builder Phone | 9193379420 |
| House Plan Designer | Lennar |
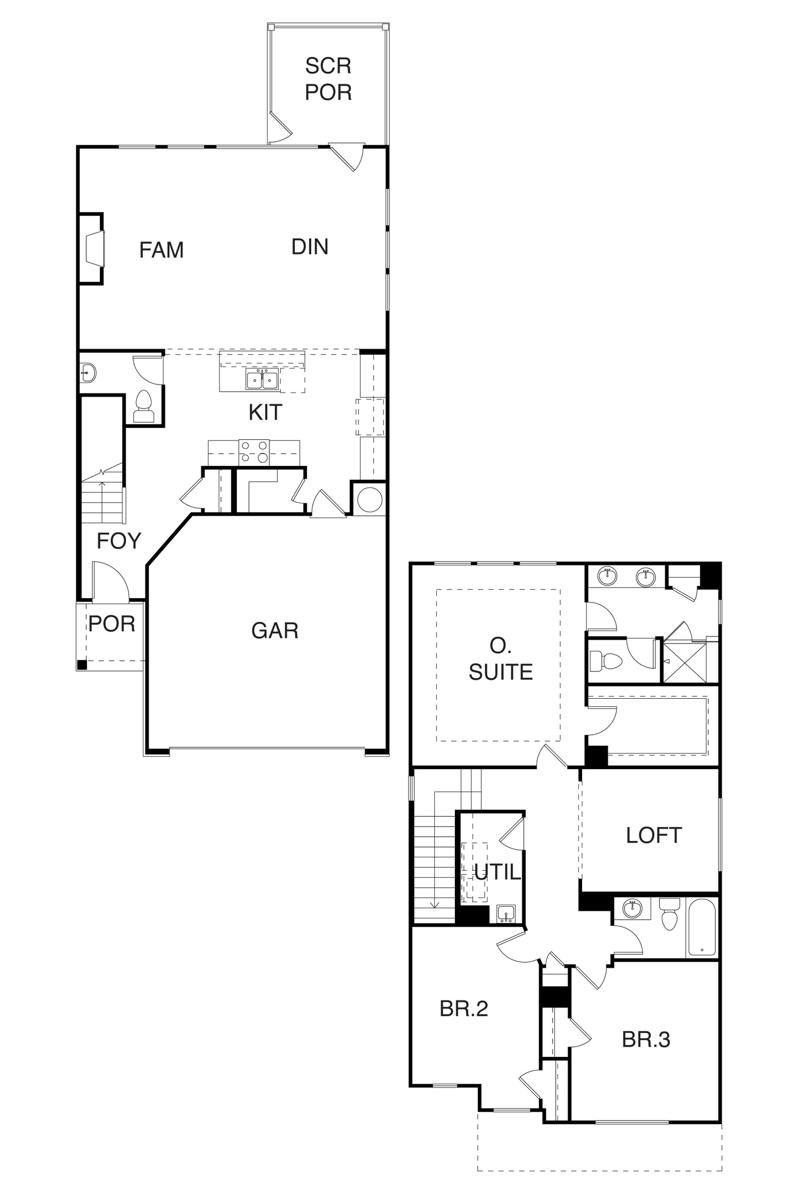
This two-story home boasts a great layout with the main level dedicated to shared living. An open layout flows from the entry to the kitchen with island, Great Room and dining area, then out to the exterior screened porch. On the second floor is a central loft surrounded by all three bedrooms including the lavish owner’s suite.
Since 1954, Lennar has had the privilege of helping hundreds of thousands of families across America move into the next stage of life with a new home. We build in some of the nation’s most popular cities, and our communities cater to all lifestyles, with new homes for all stages of life, whether you are a first-time or move-up buyer, a multigenerational family, or Active Adult. Lennar has reimagined the homebuying experience and believes great style shouldn’t cost extra, which is why our homes come with smart home technology, energy-efficient features, stylish finishes and more at no extra cost. We believe in simplifying your homebuying experience by including everything you need in a new home and community. Everything’s® Included, Everything’s® Simplified, Everything’s® Connected.
250k - 700k